IAN CANNON
Designer NOTTINGHAM
cannoni.design
Retail:
Commercial:
Domestic:
Product:
Plans & Details:
Leisure:
Education:
Health:
More
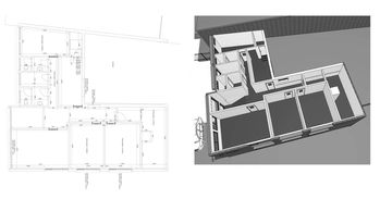
3D Building Survey
​
Software: ArchiCAD