IAN CANNON
Designer NOTTINGHAM
cannoni.design
Retail:
Commercial:
Domestic:
Product:
Plans & Details:
Leisure:
Education:
Health:
More
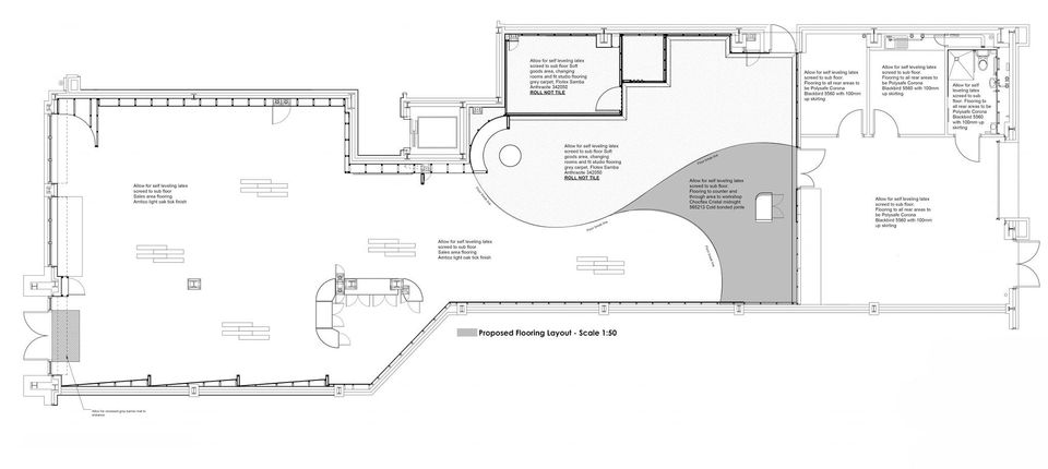
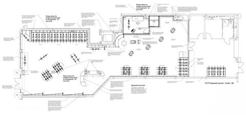
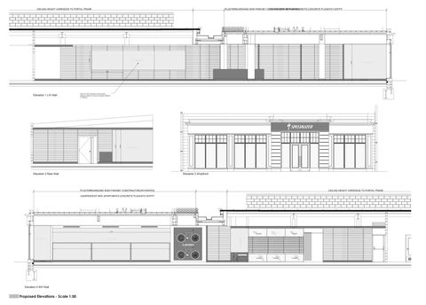
Store plans for Specialized stores nationwide.
​
Software: ArchiCAD.